Accueil
Nos partenaires
Economie et écologie
Ossature Bois
Extension surélévation
Garage
Quelques réalisations
Contact
HAPPY HOME 33
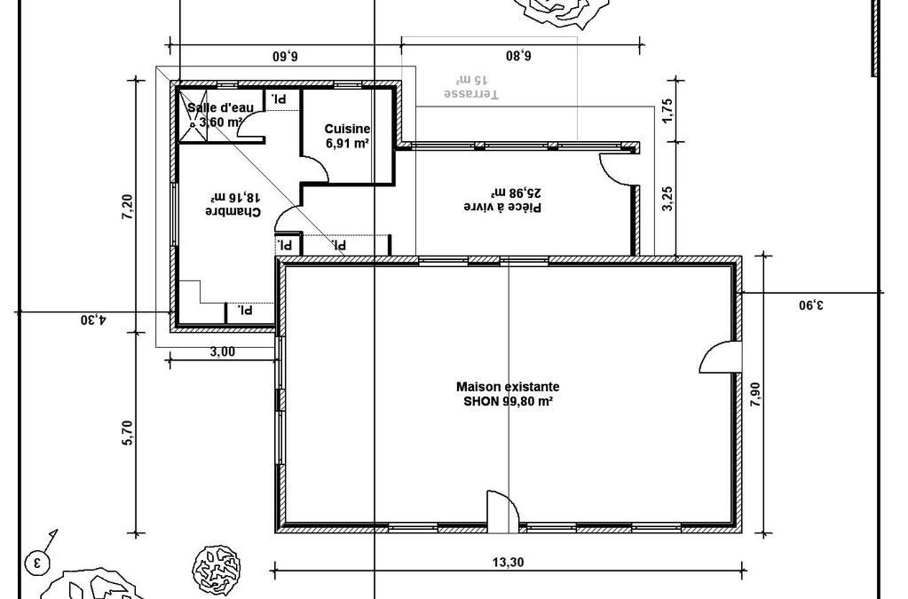
Extension maison traditionnelle
Le Taillan Médoc
Retour
Défiler vers le haut